戸建ての物件情報

戸建て福岡市競売物件西戸崎1丁目 戸建て

物件名 西戸崎1丁目 戸建て
所在地 福岡市東区西戸崎1-18-20
構造 木造スレート葺2階建て
間取り 4LDK
価格 売却基準価格:4,560,000円 買受可能価格:3,648,000円
  • 物件についてメール
  • 物件の詳細を見る

戸建て競売物件福岡市福重4丁目 戸建て

物件名 福重4丁目 戸建て
所在地 福岡市西区福重4-16-14
構造 木造ルーフィングぶき2階建て
間取り 4LDK
価格 売却基準価格:22,900,000円 買受可能価格:18,320,000円
  • 物件についてメール
  • 物件の詳細を見る

戸建て春日市競売物件若葉台西5丁目 戸建て

物件名 若葉台西5丁目 戸建て
所在地 春日市若葉台西5-76
構造 木造スレートぶき2階建て
間取り 4LDK
価格 売却基準価格:19,040,000円 買受可能価格:15,232,000円
  • 物件についてメール
  • 物件の詳細を見る

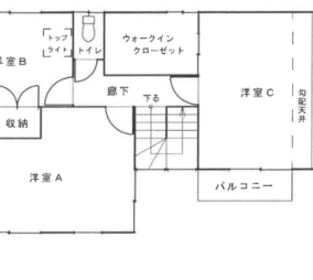
宗像市戸建て競売物件自由が丘7丁目 戸建て

5LDK+倉庫+書斎+パウダースペース  建物:約58坪、土地:約106坪

物件名 自由が丘7丁目 戸建て
所在地 宗像市自由ヶ丘7-16-8
構造 木造スレートぶき2階建て
間取り 5LDK+倉庫+書斎+パウダースペース
価格 売却基準価格:23,760,000円 買受可能価格:19,008,000円
  • 物件についてメール
  • 物件の詳細を見る

宗像市戸建て競売物件稲元4丁目 戸建て

物件名 稲元4丁目 戸建て
所在地 宗像市稲元4-2-10
構造 木造スレートぶき2階建て
間取り 4LDK
価格 売却基準価格:10,240,000円 買受可能価格:8,192,000円
  • 物件についてメール
  • 物件の詳細を見る
ページの先頭へ